Introduction
As a part of the Architecture Design challenge, we are asked to design a low-rise, high-density cluster housing complex for railway employees on a 63,691 sqm land parcel in Hyderabad, India. The housing should cater to both low-income group (LIG) and middle-income group (MIG), providing functional, affordable, and aesthetically pleasing living spaces.
Project Aim
From the preliminary research and sitevisits I came to know that Nowadays, most urban housing complexes for employees in India lack interaction, making spaces feel more lifeless. Since the user group consists of railway employees, I want to emphasize interaction among them, as it brings a sense of community, reduces feelings of isolation, and can significantly enhance their overall well-being.
In traditional Indian vernacular housing, interactive spaces like verandas, arugus, and corridors play an important role in promoting interaction among people. I aim to bring back the essence of these interactive elements into the urban housing complex.
These are some pictures of interactive spaces that inspired me.
Chawl Housing, Mumbai
Arugu Space of Traditional Manduva house, A.P.
Typical veranda spaces in rural areas.
Design Solution
Implementing a modular approach allows for the creation of diverse interactive spaces between units. These combinations of different modules can enhance social interaction and engagement, offering various areas for residents to connect and socialize, helping to eliminate monotony within the clusters.
Design Solution
The veranda spaces are designed to connect to a central courtyard, creating a cluster of interactive areas. These clusters are then linked to a larger courtyard, forming a mega-cluster. This layout encourages residents to engage in various social activities, enhancing interaction and a sense of community.
Design Process
Analysis from Case Studies
From my initial research, I discovered that typical apartment blocks with service cores at the center offer limited opportunities for social interaction. In contrast, housing communities designed with corridors facing central courtyards provide more chances for residents to engage and communicate. This design approach fosters a sense of community and supports a healthier, more connected lifestyle.
Conclusion from the Research: Clusters with central courtyards are more suitable for staff housing than traditional apartment blocks, as they promote greater social interaction and community engagement.
Site Plan
MIG Type 1 - 3BHK Unit
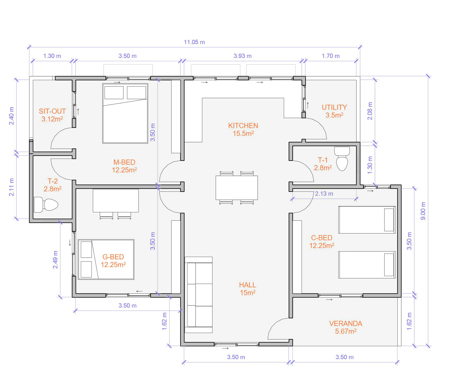
Floor Plan-Carpet Area: 86 SQM
Sectional View
MIG Type 2 - 2BHK Unit
Floor Plan-Carpet Area: 70 SQM
Sectional View
Single MIG Cluster
Corridor
Veranda
Open to Air
Entry
3BHK
2BHK
Built-Up Area of single MIG Cluster: 770 SQM
Combinations of 3BHK & 2BHK Units
Here are some possible combinations of MIG Type 1 and Type 2 units that create interactive social spaces between them. These variations ensure that each cluster is distinct and unique, reducing monotony within the complex.
Formation of Mega Cluster
All veranda spaces are connected to the central courtyard forming a cluster
All these courtyards are connected to another big courtyard forming a mega-cluster
This section demonstrates how floor-to-floor visual connectivity improves communication between residents.
This section shows how people use both common spaces and private balconies.
Extruded View
Elevations
Elevations
LIG Type 1 - 1BHK Unit
Floor Plan-Carpet Area: 51 SQM
Sectional View
LIG Type 2 - 2 Rooms Unit
Floor Plan-Carpet Area: 31 SQM
Sectional View
LIG Type 1 - 1BHK Unit
Corridor
Veranda
Open to Air
Entry
1BHK
2Rooms
Built-Up Area of single LIG Cluster: 515 SQM
Combinations of 2BHK & 2Rooms Units
Formation of Mega Cluster
All veranda spaces are connected to the central courtyard forming a cluster
All these courtyards are connected to another big courtyard forming a mega-cluster
This section demonstrates how floor-to-floor visual connectivity improves communication between residents.
This section shows how people use both common spaces and private balconies.



















































































